◎ 廣東省知名商標 ◎ 國家建筑裝飾工程設計專項甲級 ◎ 建筑裝修裝飾工程專業承包壹級
歡迎訪問星藝裝飾南寧公司官網

樓盤地址:南寧市五象新區良堤路6號
竣工時間:2016-12-24
物業類型:南寧萬達茂投資有限公司
樓盤簡介:
南寧萬達茂,以文化旅游商業綜合體之世界領先形態落戶南寧,項目位于五象新區良堤路,屬于五象新區的核心位置。項目總投資約150億,規劃有文化、旅游、商業、酒店、旅游新城等內容。包括國際室內主題公園、電影城、星級度假酒店、世界級商業、美食中心、室外步行街、配套精品江景住宅等業態。它將被打造成南寧、廣西乃至東盟的文化旅游中心、商業與生活中心,將大大助力南寧的城市升級,成為中國的文化旅游名城。
萬達茂142平裝修案例
風格:現代簡約
造價:24
3111 人查看該裝修案例
本裝修設計方案由 設計師: 王晶 提供
萬達茂140平裝修案例
風格:中式
造價:
4308 人查看該裝修案例
本裝修設計方案由 設計師: 程文芳 提供
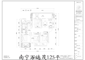
萬達茂125平裝修案例
風格:中式
造價:
4443 人查看該裝修案例
本裝修設計方案由 設計師: 程文芳 提供
萬達茂120平美式裝修案例
風格:美式
造價:
4534 人查看該裝修案例
本裝修設計方案由 設計師: 黃林妮 提供
萬達茂135平港式裝修案例
風格:港式
造價:
7100 人查看該裝修案例
本裝修設計方案由 設計師: 陸惠甜 提供
萬達茂140平裝修案例
風格:新中式
造價:14
3106 人查看該裝修案例
本裝修設計方案由 設計師: 馬健月 提供
萬達茂143平完工實景
風格:現代簡約
造價:
3652 人查看該裝修案例
本裝修設計方案由 設計師: 黃佑林 提供
萬達茂110平裝修案例
風格:新中式
造價:
4296 人查看該裝修案例
本裝修設計方案由 設計師: 熊峰 提供
萬達茂140平裝修案例
風格:美式
造價:
4370 人查看該裝修案例
本裝修設計方案由 設計師: 熊峰 提供
萬達茂140平裝修設計案例
風格:中式
造價:
4279 人查看該裝修案例
本裝修設計方案由 設計師: 溫寶華 提供
萬達茂120平裝修案例
風格:現代簡約
造價:13萬
4344 人查看該裝修案例
本裝修設計方案由 設計師: 李發 提供
萬達茂120平裝修案例
風格:新中式
造價:全包21萬
4198 人查看該裝修案例
本裝修設計方案由 設計師: 肖俊 提供
萬達茂140平裝修案例
風格:新中式
造價:全包25萬
4407 人查看該裝修案例
本裝修設計方案由 設計師: 陳忠波 提供
萬達茂140平裝修案例
風格:現代簡約
造價:半包11萬
4505 人查看該裝修案例
本裝修設計方案由 設計師: 拜倩 提供
萬達茂149平裝修案例
風格:混搭
造價:16
4052 人查看該裝修案例
本裝修設計方案由 設計師: 李忠華 提供
萬達茂300平裝修案例
風格:美式
造價:80
4084 人查看該裝修案例
萬達茂160平完工實景
風格:美式
造價:半包12萬
10178 人查看該裝修案例
本裝修設計方案由 設計師: 周平秤 提供
萬達茂120平裝修案例
風格:田園
造價:
6108 人查看該裝修案例
本裝修設計方案由 設計師: 彭麗萍 提供
萬達茂140平裝修案例
風格:北歐簡約
造價:9
3911 人查看該裝修案例
本裝修設計方案由 設計師: 拜倩 提供
萬達茂120平裝修案例
風格:新中式
造價:
3838 人查看該裝修案例
本裝修設計方案由 設計師: 趙朝暉 提供
萬達茂140平裝修案例
風格:北歐簡約
造價:15
3896 人查看該裝修案例
本裝修設計方案由 設計師: 甘盧華 提供
萬達茂130平裝修案例
風格:新中式
造價:16
4126 人查看該裝修案例
本裝修設計方案由 設計師: 蘭瑞嚴 提供
萬達茂140平裝修案例
風格:新古典
造價:20
3737 人查看該裝修案例
本裝修設計方案由 設計師: 李發 提供
萬達茂140平裝修案例
風格:輕奢
造價:
5464 人查看該裝修案例
本裝修設計方案由 設計師: 溫寶華 提供
萬達茂154平裝修案例
風格:中式
造價:
5546 人查看該裝修案例
本裝修設計方案由 設計師: 龐淇桉 提供
萬達茂144平裝修案例
風格:現代簡約
造價:
4179 人查看該裝修案例
本裝修設計方案由 設計師: 龐淇桉 提供
萬達茂130平裝修案例
風格:輕奢
造價:12
2887 人查看該裝修案例
本裝修設計方案由 設計師: 李欣倩 提供
萬達茂御峰國際140平完工實景
風格:現代簡約
造價:20
3219 人查看該裝修案例
本裝修設計方案由 設計師: 羅芳 提供
萬達茂90平裝修案例
風格:美式
造價:8
2662 人查看該裝修案例
本裝修設計方案由 設計師: 葉微 提供
萬達茂130平裝修案例
風格:歐式
造價:18
1695 人查看該裝修案例
本裝修設計方案由 設計師: 姚煒鴻 提供
請必須填寫正確信息,以便我們更好的為您服務!