◎ 廣東省知名商標 ◎ 國家建筑裝飾工程設計專項甲級 ◎ 建筑裝修裝飾工程專業承包壹級
歡迎訪問星藝裝飾南寧公司官網





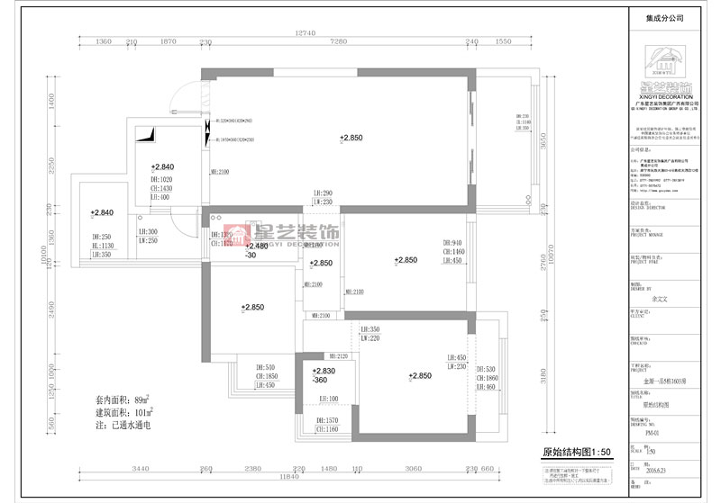
金源一品91平裝修案例賞析:根據與客戶溝通,了解客戶喜歡充滿現代感的設計,并且要求十分簡約,但是不缺失造型,要求效果圖中除去最基本的軟裝家具盡量以外不含其它軟裝飾品,可更好試看出實景效果
設計時候多方面考慮,最終決定運用最簡約又不失大氣的時尚“黑白灰”因素,并且采用現代感很強烈的“黑鈦鋼”以及“灰鏡”,在視覺上做最好的結合,使空間感加強
金源一品97平裝修案例
榮和大地179平裝修案例
教育路3號單位房125平裝修案例
龍光玖瓏湖200平裝修案例
鳴翠谷300平裝修案例
招商境界215平裝修案例
合景天峻300平裝修案例
廣源大都會190平裝修案例
提交信息,試看
人氣:11037
請必須填寫正確信息,以便我們更好的為您服務!